Search Properties

Barnsley Street, Stockport

Stockport

£210,000 Offers Over

Department:
Sales
Reference No.:
34093442
Postcode:
SK1 4EH
Type:
Terraced House
Availability:
Sold STC
Bedrooms:
2
Bathrooms:
1
Receptions:
2
Tenure:
Freehold
Location:
Stockport
Price:
£210,000 Offers Over

Property features

  • Two Bedroom Mid-Terrace Property
  • Two Reception Rooms
  • Cellar For Extra Storage
  • Patio Garden To Rear
  • Ready To Move Into
  • Close To Local Motorway Networks

Summary

Harratts Property Services is delighted to present this well-maintained two-bedroom terraced home, ideally located on the highly sought-after Barnsley Street. This charming property offers a fantastic opportunity for buyers seeking a home that’s ready to move into with minimal fuss.

Ground Floor:
Upon entry, you’re welcomed into a bright and spacious living room. Adjacent to this is the kitchen/dining area, which is well-appointed with ample space for cooking and storage. There is also access to a useful cellar, offering additional storage space.

First Floor:
Upstairs, the home offers two well-proportioned bedrooms. The master bedroom is generously sized, while the second bedroom provides a comfortable space, ideal as a guest room, home office, or child’s room. The bathroom includes a bath with overhead shower, wash basin, and WC, offering a clean and functional layout.

Outside:
To the rear, the property boasts a private and enclosed low-maintenance patio garden, ideal for relaxing or outdoor dining.

This lovely home ticks all the boxes for first-time buyers, downsizers, or investors alike. Don't miss out!

To arrange a viewing or for further enquiries, please contact Harratts Property Services on 0161 791 1350. Our team will be happy to assist you.

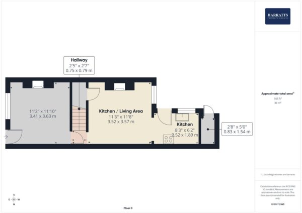
Floor Plans

Request Further Details

Or arrange a viewing